Na prodaju kuca sa dva stana | Saga Expert Agencija za nekretnine
SAGA EXPERT
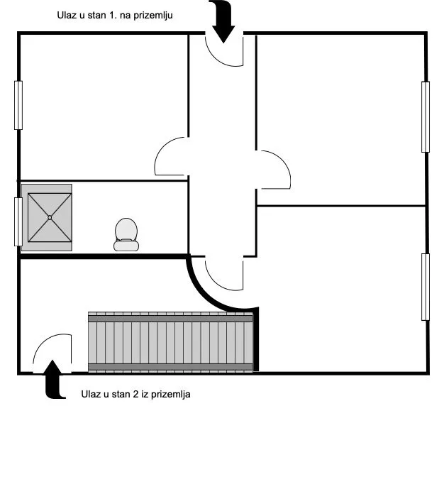
Osnova
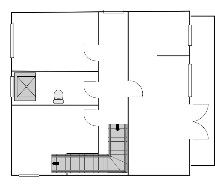
1. sprat

Na prodaju kuca sa dva stana

395.000 KM

Rata od: 2.268 KM

BiH | ID: 10053

Na prodaju kuca sa dva stana

Porodicna kuca u mirnom naselju Cesma, Banja Luka, ukupne korisne površine 155 m², sa dva odvojena stana i prelijepim panoramskim pogledom na grad. Kuća je funkcionalno organizovana i idealna za život dvije porodice ili kao investicija za izdavanje.

U prizemlju se nalazi manji stan (Stan br 1. na tlocrtu) površine cca 60 m², dok sprat (Stan br.2 na tlocrtu) obuhvata veći, potpuno renoviran stan površine oko 95 m². Gornji sprat i krov su u potpunosti obnovljeni, urađena je termoizolacija i nova fasada, dok je donji sprat u dobrom stanju i zahtijeva eventualno manja ulaganja. Potkrovlje kuće ima dobru visinu te može biti uredjeno kao dodatni stambeni prostor.

Kao dodatna pogodnost objekat ima izradjen projekat i dobijene Urbanističko Tehničke (UT) uslove za rekonstukciju postojećeg i dogradnju dodatnog dijela objekta, u koliko za to postoji potreba od strane kupca/investitora .

Osnovne informacije

Cijena po m² 2.194 KM
Kvadratura 180 m²
Struktura glavnog objekta Na upit
Tip nekretnine Kuća
Tip objekta Na upit
Vrsta zemljišta Na upit
Broj stanova u kući Na upit
Stanje nekretnine Renovirana
Godina gradnje 1981-1990
Namještenost Namješten
Površina zemljišta 563 m²
Broj soba 0.0
Spavaće sobe 4
Broj kupatila 2
Visina plafona (m) Na upit
Energetski razred Na upit
Tip gradnje Na upit
Grijanje Struja
Stolarija Kombinovano
Vrsta poda Parket
Orijentacija Jugozapad
Dozvoljena gradnja Na upit
Parking Vanjski parking
Dodatni prostor na raspolaganju Na upit
Parking Na upit
Garažna mjesta Na upit
Površina parkinga/garaže (m²) Na upit
Tip pomoćnog objekta/prostora Na upit
Površina pomoćnih objekata/ostava (m²) Na upit
Useljivo od / Raspoloživo od Na upit
Lift Na upit

Pravni status i uslovi prodaje

Pravni status (Uknjiženo) Da
Građevinska dozvola Na upit
Upotrebna dozvola Na upit
Vlasnička dokumentacija Uredna
Tereti Na upit
Hitnost prodaje Normalno
Mogući načini plaćanja Kombinovano, Kredit
UT uslovi Na upit
UT uslovi validni do Na upit

Sadržaji

Balkon
Internet
A/C konvektori
Frižider
Kamin
Mašina za suđe
Priključak struja
Priključak voda
Priključak kanalizacije
Pristup s asfaltnog puta
Šporet
Televizor
Parking

Ovo je popis najbitnijih stvari. U nekretnini se mogu nalaziti i predmeti koji nisu navedeni na ovom spisku.

Lokacija

Tačna lokacija će biti prosljeđena nakon što razgledanje nekretnine bude zakazano.

Napomena

Ukoliko je ova nekretnina na nekom drugom mjestu oglašena sa nižom cijenom, koju je prethodno odobrio vlasnik nekretnine, niža cijena takođe važi i u našoj ponudi.

Kreditni kalkulator

Rata od:
%
%

Iznos kamate

Učešće

Ukupan iznos kredita

Ukoliko želite da dobijete informacije o približnoj rati kredita, najbrže rješenje je kreditni kalkulator. Potrebno je da unesete iznos učešća, željeni period otplate i kamatu i tako jednim klikom možete doći do visine mjesečne rate kredita. Međutim, ova brza metoda obračuna je i neprecizna jer vam ne može dati odgovor na sva pitanja o kreditiranju i ne može da pronađe najbolju bankarsku ponudu.

Ekskluzivne nekretnine

Pogledaj sve
210.000 KM

Rata od: 1.206 KM

Prodaja • Stan

Starčevica, Banja Luka


Stan 61 m² Trosoban
45.000 KM

Rata od: 258 KM

Prodaja • Zemljište

Česma, Banja Luka


Zemljište
171.200 KM

Rata od: 983 KM

Prodaja • Stan

Lauš, Banja Luka


Stan 50 m² Dvosoban
140.350 KM

Rata od: 806 KM

Prodaja • Stan

Lauš, Banja Luka


Stan 41 m² Dvosoban
190.000 KM

Rata od: 1.091 KM

Prodaja • Stan

Borik, Banja Luka


Stan 45 m² Dvosoban
750 KM

Izdavanje • Stan

Centar, Banja Luka


Stan 60 m² Trosoban

Druga slična nekretnina

Pogledaj sve
Cijena na upit

Izdavanje • Poslovni prostor

Rosulje, Banja Luka


Poslovni prostor 50 m²
210.000 KM

Rata od: 1.206 KM

Prodaja • Stan

Starčevica, Banja Luka


Stan 61 m² Trosoban
45.000 KM

Rata od: 258 KM

Prodaja • Zemljište

Česma, Banja Luka


Zemljište
Cijena na upit

Prodaja • Zemljište

Paprikovac, Banja Luka


Zemljište 1.200 m²
120.000 KM

Rata od: 689 KM

Prodaja • Zemljište

Ada, Banja Luka


Zemljište 575 m² Jednosoban
900 KM

Izdavanje • Poslovni prostor

Centar, Banja Luka


Poslovni prostor 60 m² Dvosoban

Izdvojene oglasne prodaje

Pogledaj sve
Cijena na upit

Izdavanje • Poslovni prostor

Rosulje, Banja Luka


Poslovni prostor 50 m²
210.000 KM

Rata od: 1.206 KM

Prodaja • Stan

Starčevica, Banja Luka


Stan 61 m² Trosoban
45.000 KM

Rata od: 258 KM

Prodaja • Zemljište

Česma, Banja Luka


Zemljište
900 KM

Izdavanje • Poslovni prostor

Centar, Banja Luka


Poslovni prostor 60 m² Dvosoban
187.000 KM

Rata od: 1.074 KM

Prodaja • Stan

Borik, Banja Luka


Stan 58 m² Trosoban
171.200 KM

Rata od: 983 KM

Prodaja • Stan

Lauš, Banja Luka


Stan 50 m² Dvosoban

Istražite naše gradove

Kreditni savjetnik

Potrebna vam je pomoć oko kredita? Potpuno besplatno!

Kreditni savjetnik vam može dati odgovore na sva pitanja u vezi sa kreditima za stan i ostalim kreditima.


ili pozovite kreditnog savjetnika na broj

+387 51 963 960

Često postavljana pitanja

Šta znači dostupnost 24/7?

Dostupnost 24/7 znači da naš sistem i platforma rade za vas bez pauze, u bilo koje doba dana ili noći. Možete pristupiti bazi nekretnina, pregledati opise i fotografije te poslati zahtjev za zakazivanje razgledanja u bilo kom trenutku.

Šta je online pretraga nekretnina?

Online pretraga omogućava da pregledate ponudu nekretnina putem naše platforme, filtrirate po lokaciji, cijeni, tipu nekretnine i drugim kriterijima. Sve informacije su dostupne 24/7 bez potrebe za fizičkim posjetom agenciji.

Kako online agencija pomaže u pregovorima?

Naš tim posreduje između kupca i prodavca putem telefona, emaila ili video poziva. Pomažemo u dogovoru oko cijene, uslova plaćanja i ostalih detalja transakcije.

Zašto agent ne prisustvuje razgledanju stana?

Online model omogućava da razgledanje organizujete direktno sa vlasnikom, što je brže i fleksibilnije. Agent je dostupan za sva pitanja prije i poslije razgledanja putem telefona ili online.