Luksuzna kuća s pogledom na rijeku Vrbas Banja Luka – 260 m² | Saga Expert Agencija za nekretnine
SAGA EXPERT
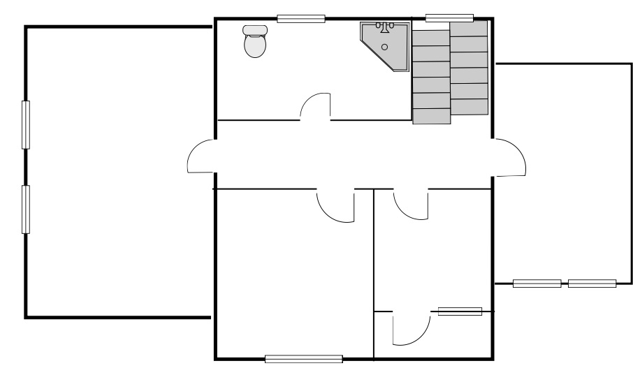
Osnova Prizemlja
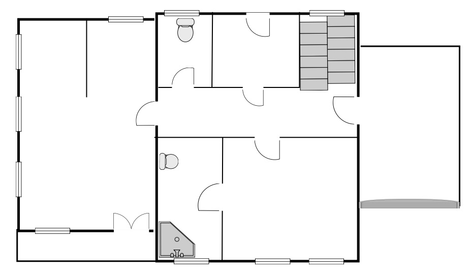
Osnova Sprata

Luksuzna kuća na prodaju s pogledom na Vrbas, 260 m²

Cijena na upit

BiH | ID: 47931

Na prodaju luksuzna kuća površine 260 m² smještena na parceli od cca 380 m², sa otvorenim pogledom na rijeku Vrbas River. Nekretnina se nalazi u mirnom okruženju i predstavlja odličan izbor za porodično stanovanje ili investiciju.

Kuća je u odličnom stanju, sa urednom dokumentacijom i odmah useljiva, bez dodatnih ulaganja. U sklopu nekretnine nalaze se garaža, dva vanjska parking mjesta, podrum i uređeno dvorište.

Prizemlje je organizovano kao prostran dnevni boravak sa trpezarijom i kuhinjom, master spavaća soba sa vlastitim kupatilom, dodatni toalet za goste i direktan pristup garaži. Na spratu se nalaze još tri spavaće sobe, kupatilo i dio neuređenog potkrovlja koje pruža mogućnost dodatnog proširenja prostora.

Zahvaljujući rasporedu, površini i lokaciji sa pogledom na rijeku, ova kuća predstavlja rijetku priliku za kupce koji traže kombinaciju komfora, privatnosti i dugoročne vrijednosti.

Osnovne informacije

Kvadratura 260 m²
Struktura glavnog objekta Jednospratnica
Tip nekretnine Kuća
Tip objekta Kuća
Vrsta zemljišta Građevinsko
Broj stanova u kući 1
Stanje nekretnine Renovirana
Godina gradnje 1981-1990
Namještenost Na upit
Površina zemljišta 380 m²
Broj soba 8.0
Spavaće sobe 4
Broj kupatila 3
Visina plafona (m) 2.70 m
Energetski razred A
Tip gradnje Zidana
Grijanje Centralno (Kotlovnica)
Stolarija PVC
Vrsta poda Na upit
Orijentacija Jugoistok
Dozvoljena gradnja Na upit
Parking Vanjski parking
Dodatni prostor na raspolaganju podrum,
Parking 2
Garažna mjesta 1
Površina parkinga/garaže (m²) 20 m²
Tip pomoćnog objekta/prostora Garaža, Podrum
Površina pomoćnih objekata/ostava (m²) 60 m²
Useljivo od / Raspoloživo od Odmah
Lift Na upit

Pravni status i uslovi prodaje

Pravni status (Uknjiženo) Da
Građevinska dozvola Da
Upotrebna dozvola Da
Vlasnička dokumentacija Uredna
Tereti Bez opterećenja
Hitnost prodaje Na upit
Mogući načini plaćanja Po dogovoru, Kombinovano
UT uslovi Na upit
UT uslovi validni do Na upit
Napomena za namještenost Kuca se prodaje namjestena

Sadržaji

Balkon
Interfon
Internet
A/C konvektori
Alarm
Francuski krevet
Frižider
Kablovska TV
Kada za kupanje
Kalorimetar za grijanje
Mašina za suđe
Šporet
Sušilica
Televizor
Tuš kabina
Video nadzor objekta
WiFi
Parking
Grijanje

Ovo je popis najbitnijih stvari. U nekretnini se mogu nalaziti i predmeti koji nisu navedeni na ovom spisku.

Lokacija

Tačna lokacija će biti prosljeđena nakon što razgledanje nekretnine bude zakazano.

Napomena

Ukoliko je ova nekretnina na nekom drugom mjestu oglašena sa nižom cijenom, koju je prethodno odobrio vlasnik nekretnine, niža cijena takođe važi i u našoj ponudi.

Ekskluzivne nekretnine

Pogledaj sve
Cijena na upit

Prodaja • Stan

Banja Luka


Stan 80 m² Trosoban
1.100 KM

Izdavanje • Stan

Centar, Banja Luka


Stan 110 m² Četvorosoban
Cijena na upit

Prodaja • Kuća

Laktaši


Kuća 1.200 m²
210.000 KM

Rata od: 1.206 KM

Prodaja • Stan

Starčevica, Banja Luka


Stan 61 m² Trosoban
45.000 KM

Rata od: 258 KM

Prodaja • Zemljište

Česma, Banja Luka


Zemljište
171.200 KM

Rata od: 983 KM

Prodaja • Stan

Lauš, Banja Luka


Stan 50 m² Dvosoban

Druga slična nekretnina

Pogledaj sve
285.000 KM

Rata od: 1.637 KM

Prodaja • Stan

Nova Varoš, Banja Luka


Stan 80 m² Četvorosoban
Cijena na upit

Prodaja • Stan

Banja Luka


Stan 80 m² Trosoban
1.100 KM

Izdavanje • Stan

Centar, Banja Luka


Stan 110 m² Četvorosoban
300.000 KM

Rata od: 1.723 KM

Prodaja • Stan

Centar, Banja Luka


Stan 77 m² Trosoban
210.000 KM

Rata od: 1.206 KM

Prodaja • Stan

Starčevica, Banja Luka


Stan 61 m² Trosoban
Cijena na upit

Izdavanje • Poslovni prostor

Rosulje, Banja Luka


Poslovni prostor 50 m²

Izdvojene oglasne prodaje

Pogledaj sve
285.000 KM

Rata od: 1.637 KM

Prodaja • Stan

Nova Varoš, Banja Luka


Stan 80 m² Četvorosoban
Cijena na upit

Prodaja • Stan

Banja Luka


Stan 80 m² Trosoban
1.100 KM

Izdavanje • Stan

Centar, Banja Luka


Stan 110 m² Četvorosoban
Cijena na upit

Prodaja • Kuća

Laktaši


Kuća 1.200 m²
300.000 KM

Rata od: 1.723 KM

Prodaja • Stan

Centar, Banja Luka


Stan 77 m² Trosoban
210.000 KM

Rata od: 1.206 KM

Prodaja • Stan

Starčevica, Banja Luka


Stan 61 m² Trosoban

Istražite naše gradove

Procjena vrijednosti nekretnine — brzo i besplatno

Uporedite ovaj oglas sa okvirnom tržišnom vrijednošću: besplatna procjena na osnovu stvarnih podataka o lokaciji i karakteristikama.

Kreditni savjetnik

Potrebna vam je pomoć oko kredita? Potpuno besplatno!

Kreditni savjetnik vam može dati odgovore na sva pitanja u vezi sa kreditima za stan i ostalim kreditima.


ili pozovite kreditnog savjetnika na broj

+387 51 963 960

Često postavljana pitanja

Šta znači dostupnost 24/7?

Dostupnost 24/7 znači da naš sistem i platforma rade za vas bez pauze, u bilo koje doba dana ili noći. Možete pristupiti bazi nekretnina, pregledati opise i fotografije te poslati zahtjev za zakazivanje razgledanja u bilo kom trenutku.

Šta je online pretraga nekretnina?

Online pretraga omogućava da pregledate ponudu nekretnina putem naše platforme, filtrirate po lokaciji, cijeni, tipu nekretnine i drugim kriterijima. Sve informacije su dostupne 24/7 bez potrebe za fizičkim posjetom agenciji.

Kako online agencija pomaže u pregovorima?

Naš tim posreduje između kupca i prodavca putem telefona, emaila ili video poziva. Pomažemo u dogovoru oko cijene, uslova plaćanja i ostalih detalja transakcije.

Zašto agent ne prisustvuje razgledanju stana?

Online model omogućava da razgledanje organizujete direktno sa vlasnikom, što je brže i fleksibilnije. Agent je dostupan za sva pitanja prije i poslije razgledanja putem telefona ili online.