Šargovacka
Banja Luka | ID oglasa: 34939
U mirnom dijelu naselja Šargovac, na svega 15 minuta vožnje od centra Banje Luke, nalazi se porodična kuća sa velikim placem površine 3.100 m².
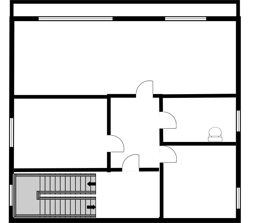
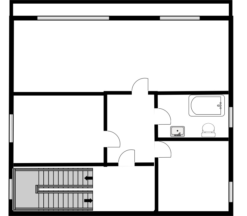
Smještena u zelenom okruženju i orijentisana ka jugu, ova nekretnina pruža obilje dnevnog svjetla i potencijal za kreiranje udobnog porodičnog doma. Kuća se prostire na tri etaže P+1+M (prizemlje, sprat i potkrovlje) – sprat je odmah useljiv, prizemlju je potrebno osvježenje, dok je potkrovlje ostavljeno kao prazan prostor koji se može urediti prema potrebi.
Objekat je u stabilnom građevinskom stanju, sa čvrstom krovnom konstrukcijom kojoj je poželjna sanacija. Na placu se nalazi i zidani pomoćni objekat površine oko 40 m² koji uključuje garažu i ljetnu kuhinju.
Kuća ima priključak na gradski vodovod, ali i vlastiti bunar, dok se grijanje trenutno odvija na struju.
Ova nekretnina je idealna za porodice koje traže privatnost, mir i prostor za život i dodatne projekte, ali i za investitore koji prepoznaju potencijal ovakve lokacije i veličine placa.
| Struktura | Trosoban |
| Parking | Garaža |
| Ukupno spratova | 2 |
| Godina gradnje | 1971-1980 |
| Namještenost | Nenamjesteno |
| Stolarija | Drvo |
| Visina plafona | 2.70 |
| Vrsta poda | Parket |
| Grijanje | Struja |
| Orjentacija | Jugoistok |
| Površina parkinga/garaže | 16 |
| Broj parkinga/garaža | 1 |
| Broj spavaćih soba | 4 |
Ukoliko želite da dobijete informacije o približnoj rati kredita, najbrže rješenje je kreditni kalkulator. Potrebno je da unesete iznos učešća, željeni period otplate i kamatu i tako jednim klikom možete doći do visine mjesečne rate kredita. Međutim, ova brza metoda obračuna je i neprecizna jer vam ne može dati odgovor na sva pitanja o kreditiranju i ne može da pronađe najbolju bankarsku ponudu.
Posjetite naš novi sajt i saznajte više o svim uslugama vezanim za stambene kredite koje nudimo na jednom mjestu
U mirnom dijelu naselja Šargovac, na svega 15 minuta vožnje od centra Banje Luke, nalazi se porodična kuća sa velikim placem površine 3.100 m².
Smještena u zelenom okruženju i orijentisana ka jugu, ova nekretnina pruža obilje dnevnog svjetla i potencijal za kreiranje udobnog porodičnog doma. Kuća se prostire na tri etaže P+1+M (prizemlje, sprat i potkrovlje) – sprat je odmah useljiv, prizemlju je potrebno osvježenje, dok je potkrovlje ostavljeno kao prazan prostor koji se može urediti prema potrebi.
Objekat je u stabilnom građevinskom stanju, sa čvrstom krovnom konstrukcijom kojoj je poželjna sanacija. Na placu se nalazi i zidani pomoćni objekat površine oko 40 m² koji uključuje garažu i ljetnu kuhinju.
Kuća ima priključak na gradski vodovod, ali i vlastiti bunar, dok se grijanje trenutno odvija na struju.
Ova nekretnina je idealna za porodice koje traže privatnost, mir i prostor za život i dodatne projekte, ali i za investitore koji prepoznaju potencijal ovakve lokacije i veličine placa.
| Struktura | Trosoban |
| Parking | Garaža |
| Ukupno spratova | 2 |
| Godina gradnje | 1971-1980 |
| Namještenost | Nenamjesteno |
| Stolarija | Drvo |
| Visina plafona | 2.70 |
| Vrsta poda | Parket |
| Grijanje | Struja |
| Orjentacija | Jugoistok |
| Površina parkinga/garaže | 16 |
| Broj parkinga/garaža | 1 |
| Broj spavaćih soba | 4 |
Ukoliko želite da dobijete informacije o približnoj rati kredita, najbrže rješenje je kreditni kalkulator. Potrebno je da unesete iznos učešća, željeni period otplate i kamatu i tako jednim klikom možete doći do visine mjesečne rate kredita. Međutim, ova brza metoda obračuna je i neprecizna jer vam ne može dati odgovor na sva pitanja o kreditiranju i ne može da pronađe najbolju bankarsku ponudu.

Kreditni savjetnik vam može dati odgovore na sva pitanja u vezi sa kreditima za stan i ostalim kreditima.
ili pozovite kreditnog savetnika na broj
Dostupnost 24/7 znači da naš sistem i platforma rade za vas bez pauze, u bilo koje doba dana ili noći. Bez obzira gdje se nalazite ili koje je vrijeme, možete pristupiti našoj bazi nekretnina, pregledati detaljne opise, profesionalne fotografije i 3D ture. Omogućavamo vam da u bilo kom trenutku obavite virtuelni obilazak nekretnine, pronađete idealnu nekretninu prikladnu vasim potrebama i pošaljete zahtjev za zakazivanje fizičkog pregleda. Vaša potraga za savršenom nekretninom nikada ne mora da čeka!
Online prezentacija je savremen način prikazivanja nekretnina putem digitalnih alata koji omogućavaju kupcima i zakupcima da steknu kompletan uvid u nekretninu iz udobnosti svog doma. Ona uključuje profesionalne fotografije, detaljne opise, video snimke i interaktivne tlocrte stana koje omogućavaju pregled svakog detalja nekretnine. Na ovaj način štedite svoje vrijeme, dobijate jasnu sliku o stanju i karakteristikama nekretnine, a proces pretrage postaje brži, jednostavniji i efikasniji. Online prezentacija pruža sve potrebne informacije kako biste donijeli ispravni i informisanu odluku štedeći svoje vrijeme ali i novac.
Online agent je profesionalac u prometu nekretninama koji koristi savremene digitalne alate kako bi proces kupovine, prodaje ili iznajmljivanja nekretnina učinio bržim, efikasnijim i dostupnijim. Za razliku od tradicionalnih agenata, online agent vam pruža podršku telefonski ili putem interneta – od pretrage nekretnina, virtuelnih obilazaka, komunikacije putem video poziva ili chata, pa sve do vođenja pravnih i administrativnih procedura.
Online agenti pregovaraju između zainteresovanih strana u cilju zaključenja pravnog posla. To podrazumijeva dogovore u vezi sa cijenom nekretnine, načina plaćanja i ostalih uslova, daje eventualne savjete u vezi sa određenim ulaganjima koja mogu povećati vrijednost ili funkcionalnost nekretnine. Pored toga, online agenti se brinu o realizaciji svih pravnih i administrativnih procesa kako bi osigurali sigurno i efikasno zaključenje posla.
Online agent je vaš pouzdani partner koji spaja ekspertizu sa tehnologijom, štedi vaše vrijeme i pruža personalizovanu uslugu na najvišem nivou.
Online agent posreduje u pregovorima tako što nakon razgledanja nekretnine kontaktira vlasnika nekretnine, kao i zainteresovanog kupca ili zakupca. Komunikacija se odvija putem telefonskih poziva ili elektronske korespondencije, zavisno od preferencija klijenata.
Njegova uloga je da pažljivo sasluša zahtjeve, interese i mogućnosti obe strane, te da posreduje u postizanju dogovora koji je optimalan za sve učesnike. Online agent se fokusira na dogovore u vezi sa cijenom, načinom plaćanja, uslovima i informacijama vaznim za ralizaciju i potpis Ugovora, rokovima predaje nekretnine i slično, istovremeno pružajući stručne savjete i osiguravajući da pregovori budu efikasni i transparentni.
Cilj online agenta je da pronađe najbolje rješenje koje zadovoljava obe strane, omogućavajući brzo i sigurno zaključenje pravnog posla.
Agent se na razgledanju stana moze pojaviti na zahtjev jedne od zainteresovanih strana, međutim u koliko ne, fokus online agenta je na transparentnosti i unaprijed maksimalno pripremljenom klijentu kako bi razgledanje bilo samo potvrda onoga što je već vidio na portalu. Klijent dobija sve potrebne informacije unaprijed – detaljne opise, profesionalne fotografije i tlocrte nekretnine – čime stiče kompletan uvid pre fizičkog obilaska, bez iznenađenja na terenu.
Razgledanje stana organizuje se direktno između vlasnika nekretnine i zainteresovanog kupca ili zakupca. Agent ostaje u ulozi koordinatora, dostupan za sva pitanja ili pomoć putem telefona, emaila ili video poziva. Ovaj pristup eliminiše potrebu za dodatnim zakazivanjem i usklađivanjem termina, čime se cijeli proces ubrzava i pojednostavljuje.
Uloga online agenta nije samo da prati klijenta na razgledanju već da pruži stručnu podršku, posreduje u pregovorima i obezbijedi pravnu sigurnost u svakom koraku procesa. Ovim načinom rada, klijentima se ostavlja sloboda i fleksibilnost da razgledaju nekretninu prema svom rasporedu, dok agent vodi računa o svim ključnim aspektima transakcije.
Use the form below to contact us!


























